Skip til hoved indholdet mitALBOA mitALBOA

Her er der rart at bo

Vil du søge bolig i denne afdeling? Bliv medlem og skriv dig på venteliste på Aarhusbolig.

Velkommen til Høvænget

Afdelingen, opført i 1959 som murstensbyggeri, blev renoveret i 2011 med nye isolerede facader, vinduer, døre og tage. De små, hyggelige étplanshuse med haver ligger tæt på Viby Centrum og har hver et lille udhus/redskabskur. Området byder på mange faciliteter og gode indkøbsmuligheder, samt gode busforbindelser fra Viby Torv. Der er også både skoler og børneinstitutioner i nærheden.

Faciliteter

Elevator

Nej

Husdyr
Ja

1 hund eller 1 kat.

Have
Ja

Der er en lille have samt udehus/redskabsskur tilknyttet til lejemålene.

Altan

Nej

Carport/garage
Ja

20 stk. til udlejning efter venteliste.

Forbrug
Ja

Vand er indeholdt i huslejen. Varme og el afregnes direkte til leverandør.

Hårde hvidevarer
Ja

Der er tilknyttet komfur i alle lejemål.

Selskabslokale
Ja

Der er tilknyttet selskabslokale samt fælleshus til afdelingen.

TV og internet
Ja

Leveres af Norlys + AURA fiber

Kælderrum

Nej

Trappevask

Nej

Gæsteværelse

Nej

Vaskeri
Ja

Der er vaskeri i afdelingen.

Vedligehold

A-Ordning

Legeplads

Nej

Ladestander

Nej

Røgfri

Nej

Her er der rart at bo

Bliv en del af det gode fællesskab

Lejemål i afdelingen

Almindelig bolig

2 værelses

boliger
Almindelig bolig

3 værelses

boliger
Almindelig bolig

4 værelses

boliger

Boligtype

Værelser

Størrelse

Husleje

Indskud/dp

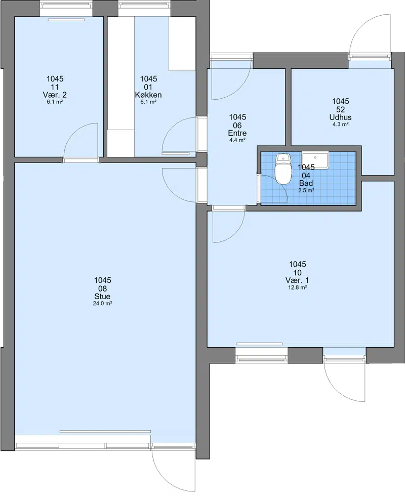
Plantegning

Almindelig bolig

2

69 m²

6338 kr.

13800 kr.

Almindelig bolig

2

65 m²

5967 kr.

13000 kr.

Almindelig bolig

3

87 m²

7983 kr.

17400 kr.

Almindelig bolig

3

87 m²

7983 kr.

17400 kr.

Almindelig bolig

3

69 m²

6338 kr.

13800 kr.

Almindelig bolig

4

96 m²

8508 kr.

19200 kr.

Området

Midtbyen

meter

Park/natur

meter

Træningsmuligheder

meter

Offentlig transport

meter

Indkøbsmuligheder

meter

Skole

meter

Institution

meter

Inspektør

Lars Tind Kolding

87406766
ltk@alboa.dk

Varmemester

Thomas Bjørn Andersen

Adresse:

Ormslevvej 68 (Vaskehuset)
8260 Viby J

87406818
vm018@alboa.dk

Kontakt

Telefontid:
Man-Fre 08.00 - 10.00
Kontortid:
Mandag 08.30 - 09.30
Torsdag 15.00 - 16.00
Vestergårdsvej 15
8260 Viby J

CVR nr. 29462518
EAN: 5790001134235

Telefon: Tlf.: 87 406 700
E-mail: post@alboa.dk

Åbningstider

Tirsdag10.00-12.00
Torsdag14.00-17.00

Telefontid

Mandag - Onsdag10.00-15.00
Torsdag10.00-17.00
Fredag10.00-12.00

Genveje