Skip til hoved indholdet mitALBOA mitALBOA

Her er der rart at bo

Vil du søge bolig i denne afdeling? Bliv medlem og skriv dig på venteliste på Aarhusbolig.

Velkommen til Elverdalsparken

Afdelingen, opført i 1963/64 som et rødt murstensbyggeri i to etager, fik renoveret badeværelserne i 1998. Der er mulighed for individuel køkkenudskiftning. I 2009 blev der monteret altaner, hvilket betyder, at boligerne på første sal har altan, mens stueetageboligerne har egen have.

Faciliteter

Elevator

Nej

Husdyr

Nej

Have
Ja

Der er have til stuelejlighederne.

Altan
Ja

Der er altan til 1. sals lejlighederne.

Carport/garage
Ja

14 garager - udlejes efter venteliste.

Forbrug
Ja

Vand og varme fordeles efter bi-måler. El afregnes dirkete til leverandør.

Hårde hvidevarer
Ja

Køleskab og vaskemaskine i lejlighederne. Fryser er ikke tilknyttet lejemålet.

Selskabslokale
Ja

Afdelingen har selskabs- og fritidslokale sammen med afd. 22, Olaf Rudes Vej og afd. 41, L. A. Ringsvej.

TV og internet
Ja

Leveres af Yousee + AURA fiber

Kælderrum
Ja

Der er pulterrum til alle lejemål.

Trappevask

Nej

Gæsteværelse

Nej

Vaskeri

Nej

Vedligehold

A-Ordning

Legeplads

Nej

Ladestander

Nej

Røgfri

Nej

Her er der rart at bo

Bliv en del af det gode fællesskab

Lejemål i afdelingen

Almindelig bolig

3 værelses

boliger
Almindelig bolig

4 værelses

boliger

Boligtype

Værelser

Størrelse

Husleje

Indskud/dp

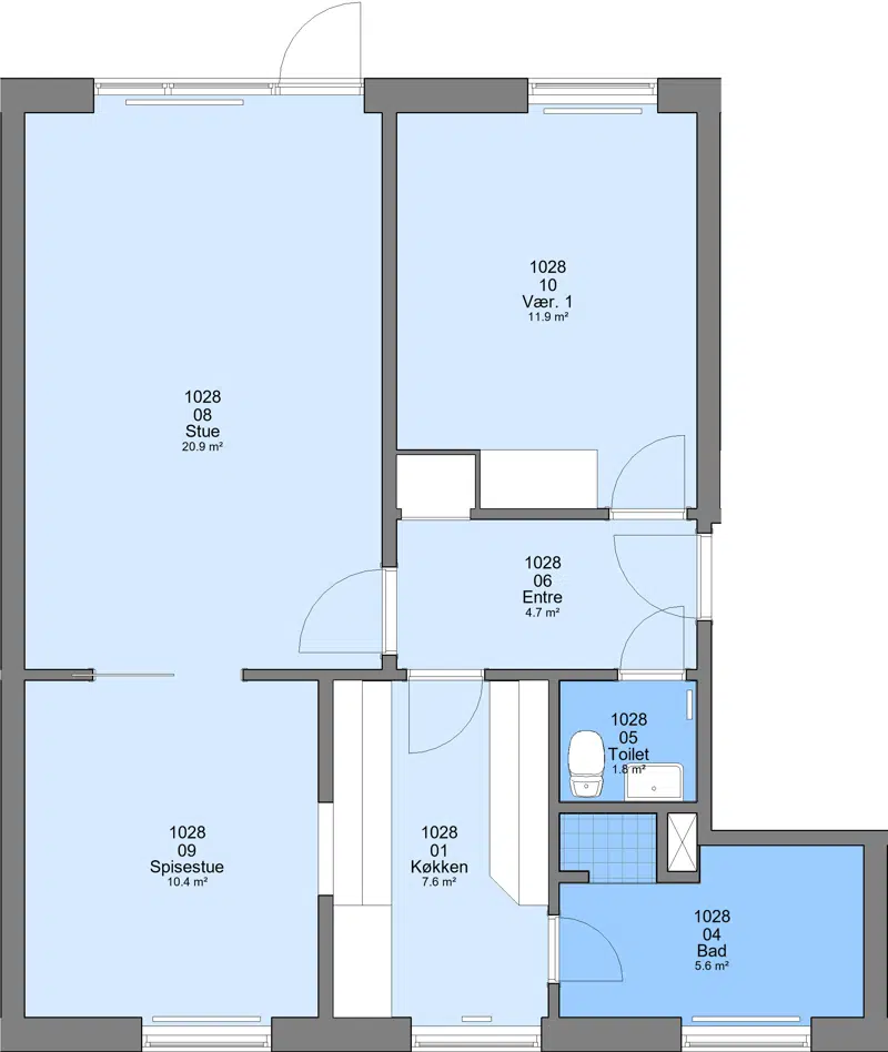
Plantegning

Almindelig bolig

3

81 m²

5992 kr.

16200 kr.

Almindelig bolig

4

97 m²

7560 kr.

19400 kr.

Området

Midtbyen

meter

Park/natur

meter

Træningsmuligheder

meter

Offentlig transport

meter

Indkøbsmuligheder

meter

Skole

meter

Institution

meter

Inspektør

Kent Boholdt Larsen

87406757
kel@alboa.dk

Varmemester

John Roesen

Adresse:

Olaf Rudes Vej 25, Kld.
8270 Højbjerg

87 406 802
vm002@alboa.dk

Kontakt

Telefontid:
Man-Fre 08.00 - 10.00
Kontortid:
Mandag 08.30 - 09.30
Torsdag 15.00 - 16.00
Vestergårdsvej 15
8260 Viby J

CVR nr. 29462518
EAN: 5790001134235

Telefon: Tlf.: 87 406 700
E-mail: post@alboa.dk

Åbningstider

Tirsdag10.00-12.00
Torsdag14.00-17.00

Telefontid

Mandag - Onsdag10.00-15.00
Torsdag10.00-17.00
Fredag10.00-12.00

Genveje