Skip til hoved indholdet mitALBOA mitALBOA

Her er der rart at bo

Vil du søge bolig i denne afdeling? Bliv medlem og skriv dig på venteliste på Aarhusbolig.

Velkommen til Gartnervænget

Afdelingen, opført i perioden 1963-66 som murstensbyggeri, har gennemgået flere store renoveringer i de seneste år. Alle varme- og vandinstallationer er blevet udskiftet, og både vinduer, døre og tag er blevet fornyet. Der er desuden mulighed for individuel renovering af køkken og bad.

Faciliteter

Elevator

Nej

Husdyr
Ja

1 hund eller 1 kat.

Have
Ja

Der er have til alle lejemål.

Altan

Nej

Carport/garage
Ja

Boligerne i nr. 2-22 og 17-47 har egen garage.

Forbrug
Ja

Koldt vand og el afregnes direkte til leverandør. Varme og varmtvand fordeles efter bi-måler.

Hårde hvidevarer
Ja

Der er komfur og emhætte, køleskab og fryser er ikke tilknyttet lejemålene.

Selskabslokale

Nej

TV og internet
Ja

Leveres af Yousee + AURA fiber

Kælderrum
Ja

Der er udhus ved boliger med garage - de øvrige har bryggers.

Trappevask

Nej

Gæsteværelse

Nej

Vaskeri

Ja

Vedligehold

A-Ordning

Legeplads

Nej

Ladestander

Nej

Røgfri

Nej

Her er der rart at bo

Bliv en del af det gode fællesskab

Lejemål i afdelingen

Almindelig bolig

4 værelses

boliger

Boligtype

Værelser

Størrelse

Husleje

Indskud/dp

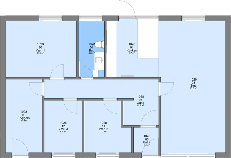
Plantegning

Almindelig bolig

4

105 m²

7422 kr.

21000 kr.

Almindelig bolig

4

94 m²

6958 kr.

18800 kr.

Området

Midtbyen

meter

Park/natur

meter

Træningsmuligheder

meter

Offentlig transport

meter

Indkøbsmuligheder

meter

Skole

meter

Institution

meter

Inspektør

Michael Vibe

87406756
miv@alboa.dk

Varmemester

Usama M. Amche

Adresse:

Børupvej 292
8310 Tranbjerg J

87406821
vm021@alboa.dk

Kontakt

Telefontid:
Man-Fre 08.00 - 10.00
Kontortid:
Mandag 08.30 - 09.30
Torsdag 08.30 - 09.30

Vestergårdsvej 15
8260 Viby J

CVR nr. 29462518
EAN: 5790001134235

Telefon: Tlf.: 87 406 700
E-mail: post@alboa.dk

Åbningstider

Tirsdag10.00-12.00
Torsdag14.00-17.00

Telefontid

Mandag - Onsdag10.00-15.00
Torsdag10.00-17.00
Fredag10.00-12.00

Genveje