Skip til hoved indholdet mitALBOA mitALBOA

Her er der rart at bo

Vil du søge bolig i denne afdeling? Bliv medlem og skriv dig på venteliste på Aarhusbolig.

Velkommen til Olaf Rudes Vej

Afdelingen, opført i 1964-65 som et murstensbyggeri i fire etager, fik totalt renoveret udearealerne i 2001. I 2008 blev der monteret altaner på alle lejligheder.

Faciliteter

Elevator

Nej

Husdyr

Nej

Have

Nej

Altan
Ja

der er altan tilknytte alle lejemål.

Carport/garage
Ja

19 garager - udlejes efter venteliste.

Forbrug
Ja

Vand er indeholdt i huslejen. Varme fordeles efter bi-måler. El afregnes dirkete til leverandør.

Hårde hvidevarer
Ja

Der er komfur og køleskab tilknyttet lejemålet.

Selskabslokale
Ja

Afdelingen har selskabs- og fritidslokale sammen med afd. 20, Elverdalsparken og afd. 41, L. A. Ringsvej.

TV og internet
Ja

Leveres af Yousee + AURA fiber

Kælderrum
Ja

Der er kælderrum til alle lejemål, og der er mulighed for at leje hobbyrum.

Trappevask
Ja

Trappevask betales via huslejen.

Gæsteværelse

Nej

Vaskeri
Ja

Der er fællesvaskeri med brugerbetaling.

Vedligehold

A-Ordning

Legeplads

Ja

Ladestander

Nej

Røgfri

Nej

Her er der rart at bo

Bliv en del af det gode fællesskab

Lejemål i afdelingen

Almindelig bolig

1 værelses

boliger
Almindelig bolig

2 værelses

boliger
Almindelig bolig

3 værelses

boliger
Almindelig bolig

4 værelses

boliger

Boligtype

Værelser

Størrelse

Husleje

Indskud/dp

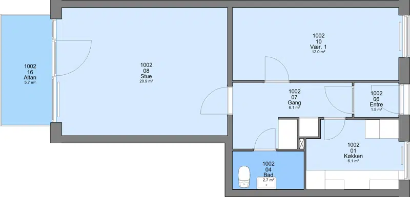
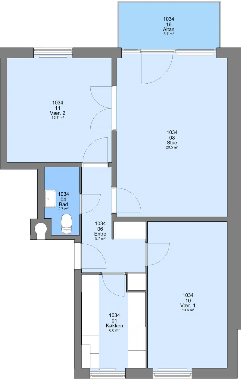
Plantegning

Almindelig bolig

1

46 m²

3701 kr.

9200 kr.

Almindelig bolig

2

68 m²

5080 kr.

13600 kr.

Almindelig bolig

2

67 m²

5009 kr.

13400 kr.

Almindelig bolig

3

80 m²

5883 kr.

16000 kr.

Almindelig bolig

3

86 m²

6234 kr.

17200 kr.

Almindelig bolig

4

89 m²

6455 kr.

17800 kr.

Området

Midtbyen

meter

Park/natur

meter

Træningsmuligheder

meter

Offentlig transport

meter

Indkøbsmuligheder

meter

Skole

meter

Institution

meter

Inspektør

Kent Boholdt Larsen

87406757
kel@alboa.dk

Varmemester

John Roesen

Adresse:

Olaf Rudes Vej 25, Kld.
8270 Højbjerg

87 406 802
vm002@alboa.dk

Kontakt

Telefontid:
Man-Fre 08.00 - 10.00
Kontortid:
Mandag 08.30 - 09.30
Torsdag 15.00 - 16.00
Vestergårdsvej 15
8260 Viby J

CVR nr. 29462518
EAN: 5790001134235

Telefon: Tlf.: 87 406 700
E-mail: post@alboa.dk

Åbningstider

Tirsdag10.00-12.00
Torsdag14.00-17.00

Telefontid

Mandag - Onsdag10.00-15.00
Torsdag10.00-17.00
Fredag10.00-12.00

Genveje