Skip til hoved indholdet mitALBOA mitALBOA

Velkommen til Egelundsparken

Afdelingen er opført i 1984 som tæt/lavt murstensbyggeri med boliger i både et, to og enkelte i 3 plan.

Faciliteter

Elevator

Nej

Husdyr
Ja

Det er tilladt at holde 1 hund eller 1 kat pr. lejemål.

Have
Ja

Nogle lejemål har tilknyttet have.

Altan
Ja

Nogle lejemål har tilknyttet altan.

Carport/garage
Ja

37 carporte og 6 garager.

Forbrug
Ja

Vand fordeles efter bi-måler. Varme og el afregnes direkte til leverandør.

Hårde hvidevarer
Ja

Komfur, emhætte, køle-/fryseskab er tilknyttet lejemålene.

Selskabslokale
Ja

Selskabslokalet er for afdelingens beboere.

TV og internet
Ja

Leveres af Yousee + AURA fiber

Kælderrum
Ja

Der er udhus/skur tilknyttet alle lejemål.

Trappevask

Nej

Gæsteværelse

Nej

Vaskeri

Ja

Vedligehold

A-Ordning

Legeplads

Ja

Ladestander

Nej

Røgfri

Nej

Her er der rart at bo

Bliv en del af det gode fællesskab

Lejemål i afdelingen

Almindelig bolig

2 værelses

boliger
Almindelig bolig

3 værelses

boliger
Almindelig bolig

4 værelses

boliger
Almindelig bolig

5 værelses

boliger

Boligtype

Værelser

Størrelse

Husleje

Indskud/dp

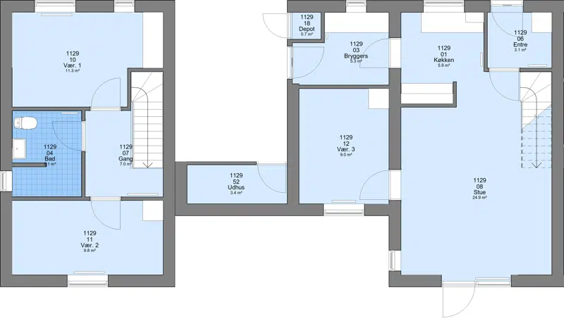
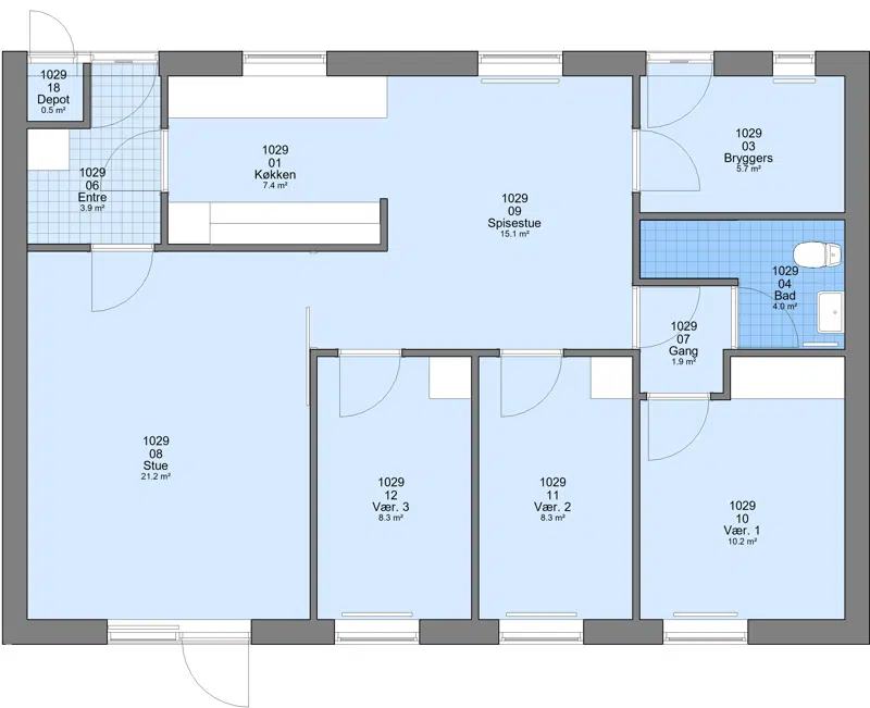
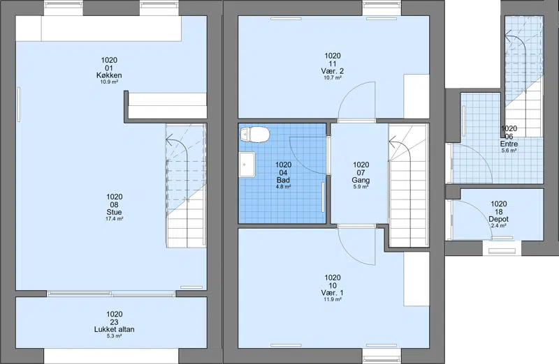
Plantegning

Almindelig bolig

2

71 m²

6036 kr.

14400 kr.

Almindelig bolig

3

85 m²

6905 kr.

17000 kr.

Almindelig bolig

3

84 m²

7429 kr.

16800 kr.

Almindelig bolig

3

85 m²

7540 kr.

17000 kr.

Almindelig bolig

4

101 m²

8076 kr.

20400 kr.

Almindelig bolig

4

102 m²

8033 kr.

20400 kr.

Almindelig bolig

5

113 m²

9523 kr.

22600 kr.

Området

Midtbyen

meter

Park/natur

meter

Træningsmuligheder

meter

Offentlig transport

meter

Indkøbsmuligheder

meter

Skole

meter

Institution

meter

Inspektør

Martin Østergaard Knudsen

87406759
mkn@alboa.dk

Varmemester

Søren Koliander

Adresse:

Byagervej 114
8330 Beder

87 406 842
vm042@alboa.dk

Kontakt

Telefontid:
Man-Fre 08.00 - 10.00
Kontortid:
Man-Fre 09.00 - 09.30
Torsdag 15.00 - 17.00
Vestergårdsvej 15
8260 Viby J

CVR nr. 29462518
EAN: 5790001134235

Telefon: Tlf.: 87 406 700
E-mail: post@alboa.dk

Åbningstider

Tirsdag10.00-12.00
Torsdag14.00-17.00

Telefontid

Mandag - Onsdag10.00-15.00
Torsdag10.00-17.00
Fredag10.00-12.00

Genveje