Skip til hoved indholdet mitALBOA mitALBOA

Velkommen til Damtoften

Afdelingen er opført i 1992 som murstensbyggeri i 2 etager.

Faciliteter

Elevator

Nej

Husdyr
Ja

Det er tilladt at holde et husdyr pr. lejemål.

Have
Ja

Der er fælles haveanlæg.

Altan
Ja

Der er fransk altan tilknyttet 1. sals boliger.

Carport/garage

Nej

Forbrug
Ja

Vand og varme er indeholdt i huslejen. El afregnes dirkete til leverandør.

Hårde hvidevarer
Ja

Dobbelt kogeplade, ingen ovn, emhætte ja, køl- og fryseskab ja (lille).

Selskabslokale

Nej

TV og internet
Ja

Leveres af Norlys + AURA fiber

Kælderrum

Nej

Trappevask

Nej

Gæsteværelse

Nej

Vaskeri

Ja

Vedligehold

A-Ordning

Legeplads

Nej

Ladestander

Nej

Røgfri

Nej

Her er der rart at bo

Bliv en del af det gode fællesskab

Lejemål i afdelingen

Ungdomsbolig

1 værelses

boliger
Ungdomsbolig

2 værelses

boliger

Boligtype

Værelser

Størrelse

Husleje

Indskud/dp

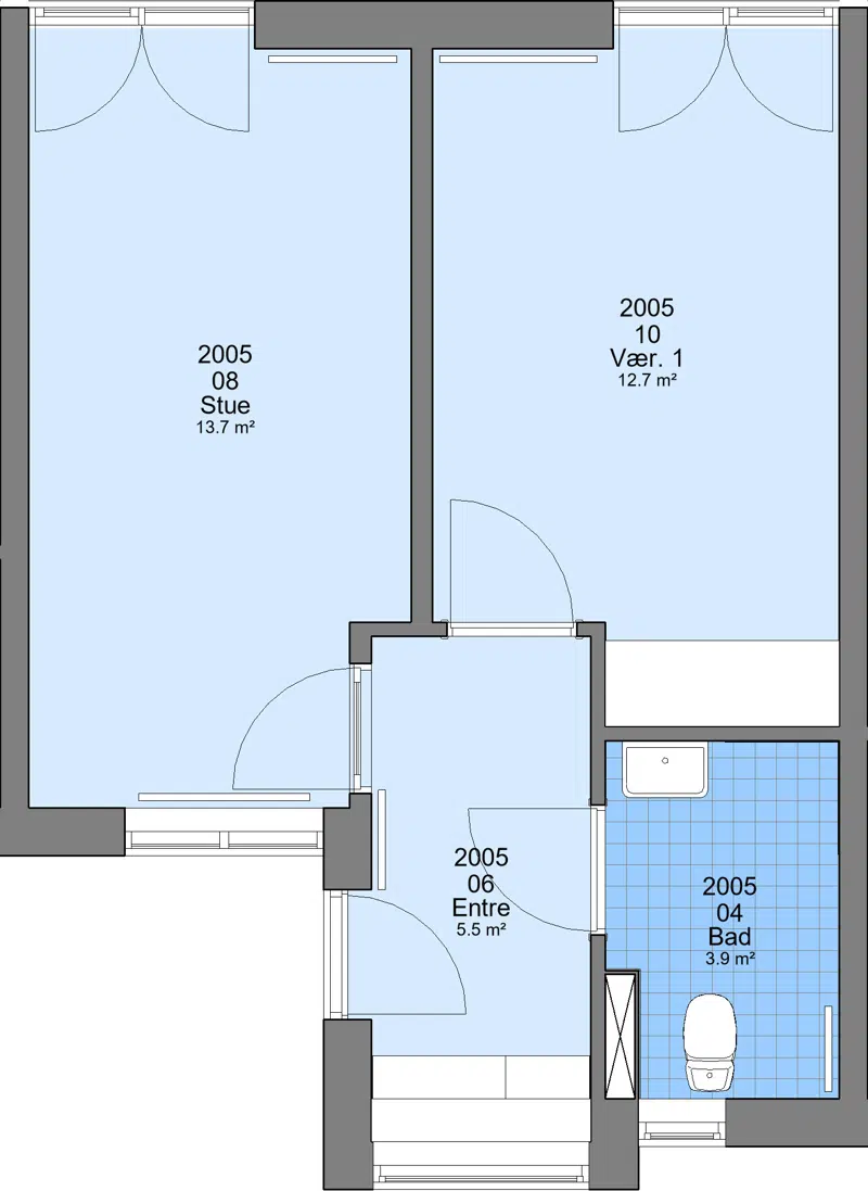
Plantegning

Ungdomsbolig

1

26 m²

3054 kr.

6000 kr.

Ungdomsbolig

2

41 m²

5453 kr.

9500 kr.

Området

Midtbyen

meter

Park/natur

meter

Træningsmuligheder

meter

Offentlig transport

meter

Indkøbsmuligheder

meter

Skole

meter

Institution

meter

Inspektør

Lars Tind Kolding

87406766
ltk@alboa.dk

Varmemester

Thomas Bjørn Andersen

Adresse:

Ormslevvej 68 (Vaskehuset)
8260 Viby J

87406818
vm018@alboa.dk

Kontakt

Telefontid:
Man-Fre 08.00 - 10.00
Kontortid:
Mandag 08.30 - 09.30
Torsdag 15.00 - 16.00
Vestergårdsvej 15
8260 Viby J

CVR nr. 29462518
EAN: 5790001134235

Telefon: Tlf.: 87 406 700
E-mail: post@alboa.dk

Åbningstider

Tirsdag10.00-12.00
Torsdag14.00-17.00

Telefontid

Mandag - Onsdag10.00-15.00
Torsdag10.00-17.00
Fredag10.00-12.00

Genveje